Casa 5 camere de vanzare in Cluj-Napoca, Buna Ziua ID 718
Pret:
120 000 EURO negociabil
Nr. camere:
5
Suprafata utila:
192 m2
Suprafata teren:
312 m2
Front:
15 m
Localitate:
Cluj-Napoca
Cartier:
Buna Ziua
Zona:
Aroma
Adaugat in data:
02-06-2010
Actualizat in data:
16-10-2015
Vizite oferta:
15592
Dotari imobil
Bucatarie:
1
Bai:
3
Terase:
3
Garaj:
da
Parcare:
da
Beci:
nu
Gradina:
da
Acces auto:
da
Finisaje:
Semifinisat
Mobilat:
nu
Utilat:
nu
Constructie:
Caramida
Beton
Beton
Geamuri termopan
Centrala termica
CF
Detalii imobil
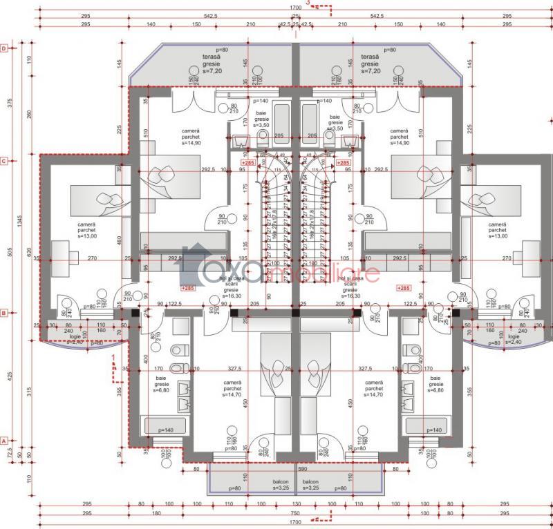
Duplex
Compartimentare:
P+E+M
P-living,bucatarie,baie servici,garaj.
E-3dormitoare ,2 bai,3 balcoane
M-open space 50 mp
P-living,bucatarie,baie servici,garaj.
E-3dormitoare ,2 bai,3 balcoane
M-open space 50 mp
Constructie noua:
da
Finalizat:
da
Descriere imobil
Se ofera spre vanzare duplex pe Calea Turzii in suprafata de 190 mp
P+E+M cu teren 300 mp,comus din:
Parter :living,bucatarie ,baie serviciu,garaj.
Etaj :3 dormitoare ,2 bai ,3 balcoane.
Mansarda: open space.
Pretul este 120000 eur/neg.
Folositi formularul de mai jos pentru a ne contacta
Persoana de contact: Cimpian Alexandru
Telefon: 0744/558995
Fax: + 40 264 333 147
Email: sandu@axaimobiliare.com
Adresa: Cluj-Napoca, Str. Memorandumului, nr. 19



