Casa 4 camere de vanzare in Chinteni ID 6439
Dotari imobil
Beton
Detalii imobil
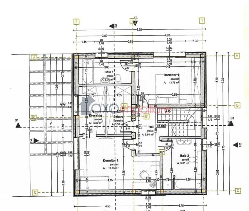
ETAJ / AL DOILEA NIVEL: 2 dormitoare, 2 bai, 1 hol, 1 debara, 1 dressing.
POD / Spatiu depozitare.
Descriere imobil
Oferim spre vanzare casa individuala frumos compartimentata, dispusa pe regim de inaltime P+E+POD, situata in Chinteni; intr-o locatie aerisita, linistita, nou-dezvoltata, cu acces usor spre oras, Centrul comercial Real / Auchan, Oasului, Bulevardul Muncii, cartierele Iris, Dambul Rotund etc.
Imobilul va fi finalizat in Septembrie-Octombrie 2022, dispune de incalzire in pardoseala, centrala termica, geamuri termopan, usa la intrare.
Se va preda la stadiul de semifinisat cu toate utilitatile trase la pozitie.
Constructia este din caramida, realizata pe fundatie din beton si este acoperita cu tigla.
Suprafata utila este de 120 mp + 1 terasa generoasa cu o suprafata de 41 mp situata la parter (cu acces atat din living, cat si din bucatarie).
Compartimentarea este frumoasa, putin mai diferita fata de majoritatea caselor.
La parter se afla 1 hol, 1 bucatarie, 1 living, 1 dormitor, 1 baie si o terasa.
Accesul la etaj se face pe scara interioara.
La etaj se afla 1 dormitor matrimonial cu baie proprie, 1 dormitor simplu, dar generos ce dispune de 1 dressing. De asemenea, etajul mai dispune de 1 baie comuna si de 1 debara.
Se vinde la stadiul de semifinisat.
Suprafata terenului este de 500 mp, imprejmuit cu gard.
Opinia agentului
" O casa individuala cu arhitectura moderna, nu foarte mare, dar care este bine organizata, oferind confort. Constructia este noua, locatia este linistita, ideala pentru cei care doresc sa locuiasca in inima naturii, dar cu acces usor spre oras si facilitati. Casa este construita din materiale de calitate buna, dispune de incalzire in pardoseala, dar si de teren. Recomand cu drag aceasta casuta individuala ! "



