Casa 4 camere de vanzare in Apahida ID 6123
Dotari imobil
Beton
Detalii imobil
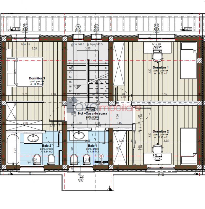
ETAJ / AL DOILEA NIVEL: 1 hol, casa scarii, 3 dormitoare, 2 bai, 1 balcon.
Descriere imobil
Oferim spre vanzare imobil de tip casa ce face parte dintr-un anasamblu de locuinte cuplate, imprejmuite, amenajari exterioare, racorduri si bransamente la utilitati.
Imobilul este situat in Apahida, judetul Cluj, intr-o locatie linistita, in apropiere de Mega Image.
Acces rapid spre Someseni, Dezmir, Sannicoara, dar si spre Cluj-Napoca.
Casa are o suprafata utila de 120 mp + 1 terasa exterioara + 1 balcon.
Compartimentare
PARTER / PRIMUL NIVEL: 1 hol, casa scarii, 1 camera de zi, 1 bucatarie, 1 dressing, 1 baie, 1 camara, 1 terasa exterioara (22.48 mp).
ETAJ / AL DOILEA NIVEL: 1 hol, casa scarii, 3 dormitoare, 2 bai, 1 balcon.
Detalii
Unul din dormitoare este matrimonial (dispune de baie proprie).
Celelalte dormitoare dispun de baie comuna si de 1 balcon cu acces din ambele incaperi.
Se vinde la stadiul de semifinisat; cu toate utilitatile trase la pozitie.
Dotari
Centrala termica, geamuri termopan, usa la intrare.
Suprafata terenului este de 60 mp.
Opinia agentului
" Casa cuplata pe regim de inaltime P+E, ce dispune de dormitor matrimonial si de terasa; constructie noua, compartimentare frumoasa, locatie linistita. Acces rapid spre Someseni, Dezmir, Sannicoara, dar si spre Cluj-Napoca. "



