Apartament 3 camere de vanzare in Cluj-Napoca, Manastur ID 4352
Dotari imobil
Beton
Descriere imobil
Propunem spre vanzare apartament cu 3 camere, confort marit, cu o suprafata utila generoasa de 90 mp, situat in Cluj-Napoca, in cartierul Manastur, zona Campului.
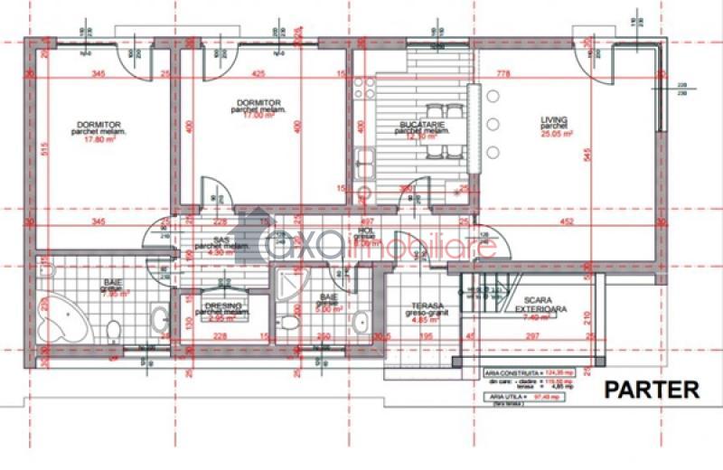
Apartamentul este pozitionat la parterul unui imobil de tip casa/vila dispus pe regim de inaltime P+E, finalizat in 2017.
Dispune de compartimentare moderna: hol, living cu bucatarie de tip open space, 2 dormitoare, dressing, 2 bai si 2 terase.
Imobilul este construit din materiale de calitate: caramida Porotherm si dispune de izolatie termica si fonica, centrala in condensare, calorifere, incalzire in pardoseala, geamuri termopan cu 3 sticle cu tamplarie Rehau.
Terasele sunt finisate si dispun de gresie si granit.
Pretul include loc de parcare si 180 mp de teren.
Opinia agentului
" Oferta recomandata clientilor mei care pun accent pe calitatea constructiei, confort, compartimentare. Apartament situat in zona Campului, intr-un imobil de tip casa/vila, potrivit unei familii. "



