Apartament 3 camere de vanzare in Cluj-Napoca, Gheorgheni ID 5268
Dotari imobil
Beton
Descriere imobil
Propunem spre vanzare apartament cu 3 camere, semifinisat, situat in Cluj-Napoca, in cartierul Gheorgheni.
Localizare: Imobilul este situat in zona strazii Constantin Brancusi, la 5 minute cu masina de Piata Cipariu.
Cartiere vecine: Buna Ziua, Borhanci, Andrei Muresanu, Centru, Calea Turzii.
Detalii despre locatie: Locatia este una linistita, verde si frumoasa; nou-dezvoltata.
Pozitionare: etajul 3/2S+P+3E, intr-un bloc nou ce va fi finalizat in Iulie-August 2020.
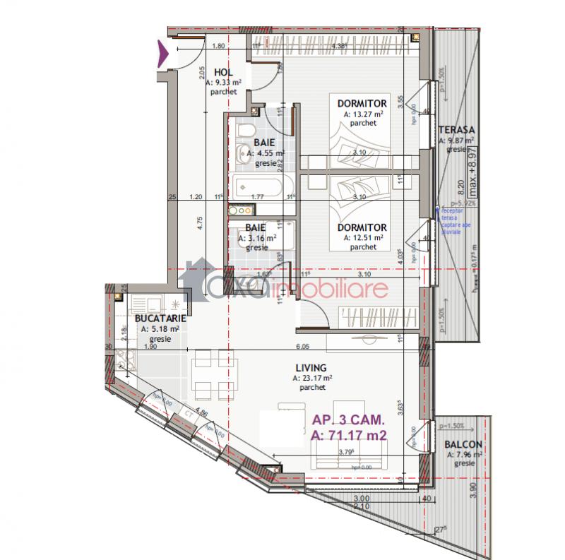
Suprafata utila este de 71.17 mp + 1 terasa de 9.87 mp + 1 balcon de 7.96 mp.
Compartimentare: 1 hol (9.33 mp), 1 living (23.17 mp), 1 bucatarie (5.18 mp), 1 dormitor simplu (12.51 mp), 1 baie (3.16 mp), 1 dormitor matrimonial cu baie proprie (dormitor de 13.27 mp, baie de 4.55 mp).
Se vinde la stadiul de semifinisat.
Dispune de centrala termica, calorifere, geamuri termopan, usa antiefractie.
Utilitatile sunt trase pe pozitie (apa, electricitate, gaz, canalizare).
Pretul unui loc de parcare (subteran) este de 8.000 Euro.
Opinia agentului
" Un apartament cu o compartimentare frumoasa, ce dispune de o terasa generoasa cu acces din cele doua dormitoare; cu un living generos ce dispune de acces pe balcon, ideal pentru clientii mei care pun accent pe compartimentare moderna, imobil nou, locatie linistita. "



