Apartament 3 camere de vanzare in Cluj-Napoca, Europa ID 3840
Dotari imobil
Descriere imobil
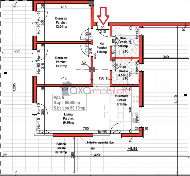
Va propunem spre apartament cu 3 camere, cu suprafata utila de 68.48 mp, situat in Cluj-Napoca, in cartierul Europa, in zona strazii Marton Aron.
Apartamentul este pozitionat la etaj retras (R / S+P+2E+R). Acest apartament dispune de terasa cu suprafata de 89 mp ce poate fi amenajata ca zona de relaxare.
Compartimentare:
- 1 living.
- 1 hol.
- 2 dormitoare.
- 1 bucatarie.
- 2 bai.
- 1 terasa cu suprafata de 89 mp.
Imobilul dispune de centrala termica proprie, calorifere, geamuri termopan si usa antiefractie.
Alte detalii:
- se vinde semifinisat cu sapa autonivelanta si peretii gletuiti.
- pretul include parcare.
Opinia agentului
"Recomand aceasta oferta clientilor mei care doresc sa locuiasca intr-o locatie nou dezvoltata din cartierul Europa. Apartament spatios, frumos compartimentat, ce dispune de o terasa cu suprafata generoasa."



