Apartament 3 camere de vanzare in Cluj-Napoca, Dambul Rotund ID 6315
Dotari imobil
Beton
Descriere imobil
De vanzare apartament semifinisat, 3 camere, suprafata utila 67 mp + 1 terasa generoasa de 135 mp, pozitionat la etaj retras intr-un ansamblu rezidential, situat in Cluj-Napoca, in cartierul Dambul Rotund, in zona strazii Calea Baciului, in apropiere de Lidl si statia de autobuz; locatie cu acces usor spre punctele de interes.
Acces usor spre Taietura Turcului, cartierele Grigorescu si Baciu; acces usor spre strazile Corneliu Coposu, Giordano Bruno, Maramuresului etc., Scoala de politie, autogara, gara etc.
Pozitionare
Etaj retras (etajul 6) / S+P+6E; bloc nou finalizat; dotat cu lift; ce dispune de curte interioara.
Apartamentul ofera o priveliste frumoasa, dar si intimitate.
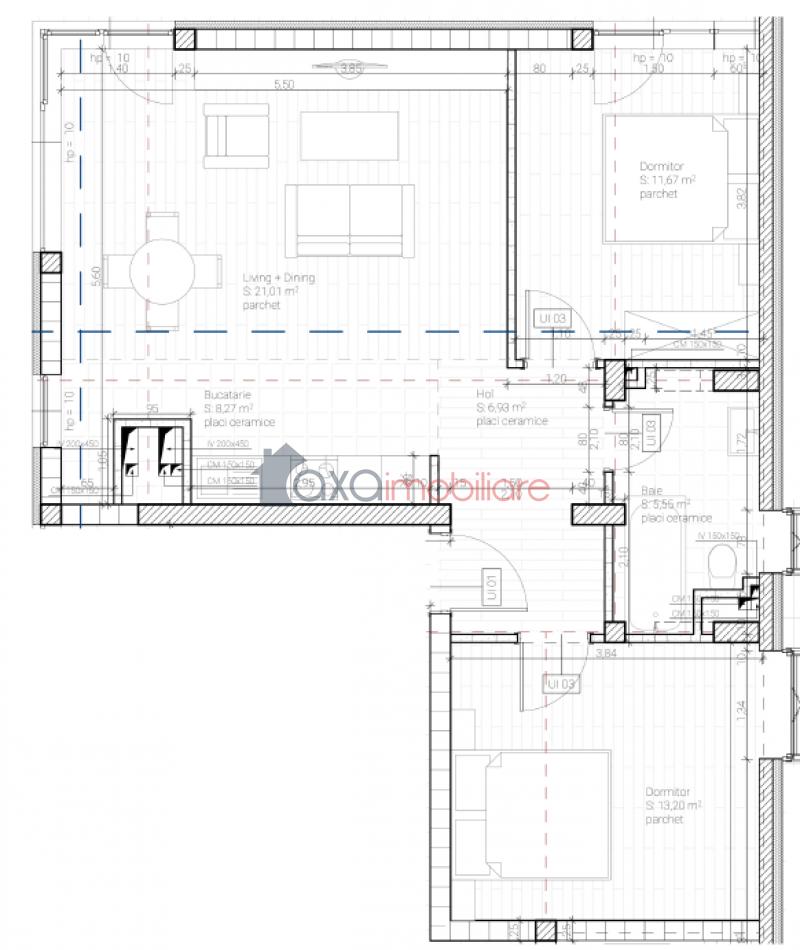
Compartimentare este moderna si frumos organizata.
1 living cu bucatarie de tip open space + 1 dining
2 dormitoare
1 hol
1 baie
1 terasa generoasa de 135 mp.
Se vinde la stadiul de semifinisat; cu toate utilitatile trase la pozitie.
Dotari
Centrala termica, geamuri termopan, usa antiefractie.
Pretul include
1 loc de parcare in garajul subteran
1 boxa pentru depozitare de 12 mp
1 terasa de 135 mp
TVA-ul de 5 %.
Opinia agentului
" Apartament pozitionat la etaj retras, ce ofera o priveliste frumoasa, dar si intimitate; ce dispune de o terasa generoasa de 135 mp. Compartimentarea este moderna si bine organizata. Imobilul face parte dintr-un ansamblu rezidential. Pretul include loc de parcare in garajul subteran, boxa pentru depozitare, dar si TVA-ul de 5%. "



