Apartament 3 camere de vanzare in Cluj-Napoca, Borhanci ID 6016
Dotari imobil
Beton
Descriere imobil
De vanzare apartament cu 3 camere, finisat modern, situat in Cluj-Napoca, in cartierul Borhanci, pe strada Romul Ladea, intr-o locatie nou-dezvoltata, cu spatii verzi in jur, dar si cu acces rapid spre zona centrala.
Acces rapid spre Piata Cipariu, Calea Turzii, cartierele Gheorgheni, Andrei Muresanu, Becas, Buna Ziua.
In apropiere se afla magazine, supermarket-uri, statia de autobuz.
Pozitionare
Etaj intermediar (2/3) intr-un bloc nou din 2017.
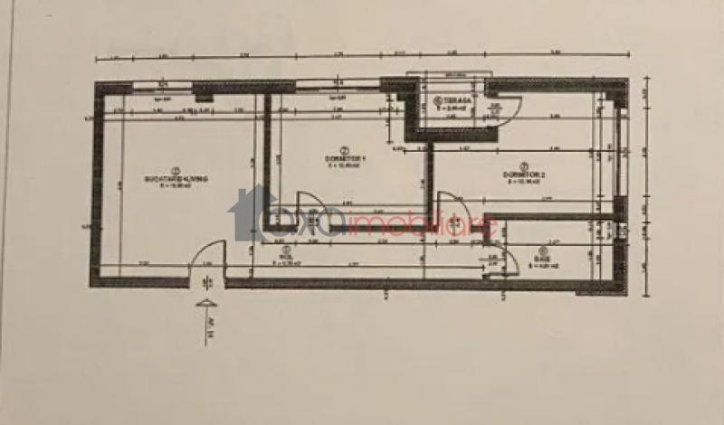
Suprafata utila este de 58 mp + 1 logie inchisa.
Compartimentare
1 living cu 1 bucatarie de tip open space
2 dormitoare
1 baie cu geam
1 hol
1 logie.
Dotari
Centrala termica, geamuri termopan, usa antiefractie, usi interioare.
Finisaje
Parchet, gresie, faianta, vopsea lavabila.
Pretul include loc de parcare in garajul subteran.
Opinia agentului
" Avantajele ofertei: constructie noua, etaj intermediar, parcare inclusa in pret; locatie linistita cu acces rapid spre Piata Cipariu. "



