Apartament 2 camere de vanzare in Cluj-Napoca, Gheorgheni ID 3519
Dotari imobil
Descriere imobil
Propunem spre vanzare apartament cu 2 camere, confort marit, IMOBIL NOU, 2 balcoane, situat in cartierul Gheorgheni, in zona strazii Constantin Brancusi, intr-o locatie linistita cu spatii verzi.
Imobilul este pozitionat la etaj intermediar (1E/D+P+3E).
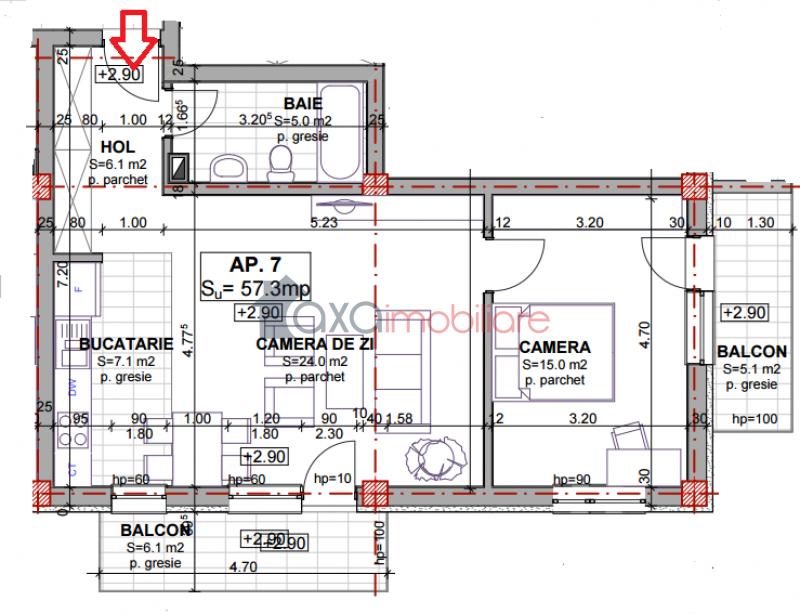
Apartamentul dispune de o suprafata utila de 57.3 mp si de compartimentare semidecomandata.
Este compus dintr-un living cu 1 bucatarie de tip open space, 1 dormitor, 1 hol, 1 baie si 2 balcoane.
Se vinde la stadiul de semifinisat cu sapa autonivelanta, peretii gletuiti, geamuri termopan cu tamplarie din PVC, usa antiefractie si centrala termica.
Aceleasi suprafete si compartimentari pot fi achizitionate si la etajul 2.
In pret este inclus 1 garaj subteran.
Finalizarea imobilului va fi in Decembrie 2016.
Opinia agentului
''Apartament spatios, semifinisat, imobil nou, situat intr-o locatie linistita din cartierul Gheorgheni.''



