Apartament 2 camere de vanzare in Apahida ID 5934
Dotari imobil
Beton
Descriere imobil
Oferim spre vanzare apartamente in Apahida, in zona Primariei, intr-o locatie linistita, cu acces usor spre punctele de interes.
Pozitionare
Etaj intermediar (1/S+P+2E) intr-un bloc nou finalizat in 2020.
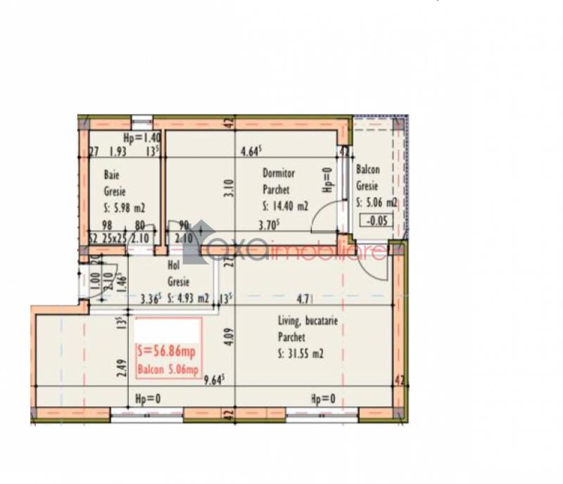
Suprafata utila este de 56.86 mp (confort sporit) + 1 balcon deschis (5.06 mp).
Compartimentare
1 living cu 1 bucatarie de tip open space
1 dormitor
1 hol
1 baie
1 balcon deschis.
Se vinde la stadiul de semifinisat cu toate utilitatile trase la pozitie.
Dotari
Centrala termica, geamuri termopan, usa antiefractie.
Pretul include loc de parcare.
Opinia agentului
" Apartament spatios, compartimentat modern, pozitionat la etaj intermediar intr-un bloc nou din Apahida; zona linistita cu acces usor spre punctele de interes. "



