Apartament 1 camere de vanzare in Cluj-Napoca, Gheorgheni ID 4611
Dotari imobil
Beton
Descriere imobil
De vanzare apartament semifinisat situat in Cluj-Napoca, in cartierul Gheorgheni, in zona Parcului Sportiv, intr-o locatie frumoasa si plina cu verdeata; locatie ce ofera o priveliste foarte frumoasa asupra zonei.
Pozitionare: etaj intermediar (la alegerea clientului), intr-un bloc nou dispus pe regim de inaltime 2S+P+9E, cu lift.
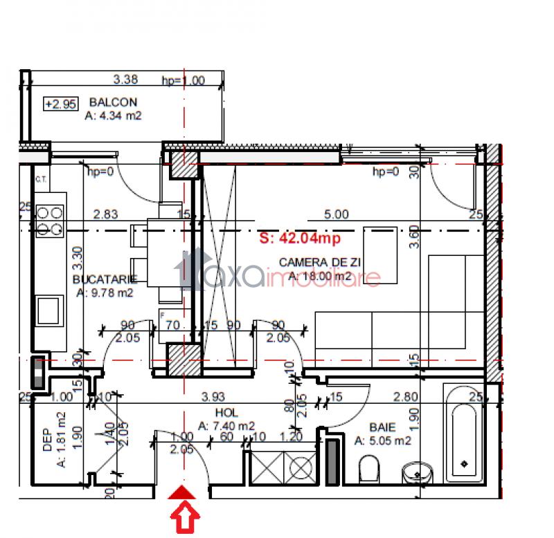
Suprafata utila este de 42.04 mp, fiind compusa dintr-o camera, 1 bucatarie, 1 baie, 1 hol, 1 spatiu pentru depozitare + 1 balcon (aprox. 4.34 mp).
Se vinde la stadiul de semifinisat.
Dispune de centrala termica, calorifere, geamuri termopan, usa antiefractie.
Toate utilitatile sunt trase la pozitie.
Pentru cei care doresc garaj subteran, pretul este de 6.000 euro.
Termen de finalizare Iunie 2018.
Opinia agentului
" Acest apartament are o compartimentare frumoasa si este ideal pentru un cuplu. Locatia este plina cu verdeata si ofera o priveliste deosebita. "



