Apartment 2 rooms for sell in Cluj-napoca, Gheorgheni ID 2929
Price:
60 087 EURO +VAT
Price / sm:
1 150 EURO/m2
No. of rooms:
2
Floor:
Intermediate/10
New building:
yes
Build year:
2015
Finalized building:
no
Finalized date:
Decembrie 2015
Comfort:
1
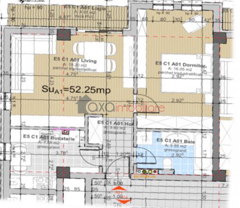
Build area:
52.25 m2
Balconies:
1 LOGIE
City:
Cluj-Napoca
Ward:
Gheorgheni
Zone:
Iulius Mall
Add date:
16-10-2015
Update date:
09-10-2023
Views number:
12456
Characteristic details
Kitchen:
1
Bathrooms:
1
Parking:
no
Cellar:
no
Divided:
Divided
Finishing:
Semi finishing
With furniture:
no
Fit out:
no
Build:
Bricks
Frostedglass windows
Metal door
Heat station
Gas counter
CF
You can conctact us using the form below.
Contact person: Secretariat
Phone: 0742/130130
0264/333147
Fax: + 40 264 333 147
Email: office@axaimobiliare.com
Address: Cluj-Napoca, Str. Memorandumului, nr. 19



